1. 51漫画网在免费阅读,51漫画APP官方网站,51漫画下载网站,51漫画在线登录入口

    旋转51漫画APP官方网站 1 2 3
    热门关键词: 51漫画下载网站系列、 冷卷法兰系列、 橡胶接头管系列
    联系51漫画网在免费阅读查看更多+

    地 址: 河南省巩义市西村工业区

    联系人: 庞经理

    手 机: 15617617287

               15038001853

    E_mail: gyltgd@126.com

    网 址: http://www.ahdslyy.com/

    http://www.gyltgdc.com/

    伸缩接头系列

    双法兰限位伸缩接头

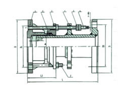
    双法兰限位伸缩接头型号VSSJA-2或B2F型,管道两边法兰的连接方式,安装在管道上可以和阀门连接,既补偿了管道的伸缩量又对阀门的维修提供了方便。 VSSJA-2型双法兰限位伸缩接头是由松套伸缩接头和一个法兰限位短管组合而成。双法兰限位伸缩接头能防止管道因超量位移导致补偿接头的泄漏和损坏,主要用于在允许位移范围内吸收轴向位移和承受轴向压力推力的管道松套连接。

    全国24小时销售热线:15617617287

    双法兰限位伸缩接头应用范围
    VSSJA-2型双法兰限位伸缩接头适用于输送海水、淡水、冷热水、饮用水、生活污水、原油、燃油、润滑油、成品油、空气、煤气、温度不高于250度的蒸汽和颗粒粉状等介质。
    双法兰限位伸缩接头功能介绍
    双法兰限位伸缩接头型号VSSJA-2或B2F型,管道两边法兰的连接方式,安装在管道上可以和阀门连接,既补偿了管道的伸缩量又对阀门的维修提供了方便。 VSSJA-2型双法兰限位伸缩接头是由松套伸缩接头和一个法兰限位短管组合而成。双法兰限位伸缩接头能防止管道因超量位移导致补偿接头的泄漏和损坏,主要用于在允许位移范围内吸收轴向位移和承受轴向压力推力的管道松套连接。

    双法兰限位伸缩接头安装说明
    VSSJA-2型双法兰限位伸缩接头适用于两边均与法兰连接,安装时调整产品两端与法兰的连接长度,对角依次均匀拧紧压盖螺栓,再调整好限位螺母,这样就能让管道在伸缩量范围内可以自由伸缩,锁定伸缩量,确保管道的安全运行


    。

    VSSJA-2型双法兰限位伸缩接头材料表

    名称
    数量
    材料
    1
    本体
    1
    QT400-15、Q235A、ZG230-450、20
    2
    密封圈
    1
    NBR
    3
    压盖
    1
    QT400-15、Q235A、ZG230-450、20
    4
    限位短管法兰
    1
    Q235A、20、16Mn
    5
    螺母
    4n
    Q235A、20、1Cr18Ni9Ti
    6
    长螺柱
    n
    Q235A、35、1Cr18Ni9Ti
    7
    螺柱
    n
    Q235A、35、1Cr18Ni9Ti

    VSSJA-2型双法兰限位伸缩接头安装数据表

    公称通径
    管子外径
    外形尺寸
    伸缩量
    法兰连接尺寸
    Dw
    L
    L1
    0.6MPa
    1.0MPa
    D
    D1
    n-d。
    D
    D1
    n-d。
    65
    76
    340
    105
    50
    160
    130
    4-¢14
    185
    145
    4-¢18
    80
    89
    190
    150
    4-¢18
    200
    160
    8-¢18
    100
    108
    210
    170
    220
    180
    114
    125
    133
    240
    200
    8-¢18
    250
    210
    140
    150
    159
    265
    225
    285
    240
    8-¢22
    168
    200
    219
    320
    280
    340
    295
    250
    273
    370
    335
    12-¢18
    395
    350
    12-¢22
    300
    325
    350
    130
    65
    440
    395
    12-¢22
    445
    400
    350
    377
    490
    445
    505
    460
    16-¢22
    400
    426
    540
    495
    16-¢22
    565
    515
    16-¢26
    450
    480
    595
    550
    615
    565
    20-¢26
    500
    530
    645
    600
    20-¢22
    670
    620
    600
    630
    755
    705
    20-¢26
    780
    725
    20-¢30
    700
    720
    860
    810
    24-¢26
    895
    840
    24-¢30
    800
    820
    590
    220
    130
    975
    920
    24-¢30
    1015
    950
    24-¢33
    900
    920
    1075
    1020
    1115
    1015
    28-¢33
    1000
    1020
    1175
    1120
    28-¢30
    1230
    1160
    28-¢36
    1200
    1220
    1405
    1340
    32-¢33
    1455
    1380
    32-¢40
    1400
    1420
    1630
    1560
    36-¢36
    1675
    1590
    36-¢42
    1500
    1520
    1730
    1660
    -
    -
    -
    1600
    1620
    1830
    1760
    40-¢36
    1915
    1820
    40-¢48
    1800
    1820
    2045
    1970
    44-¢40
    2115
    2020
    44-¢48
    2000
    2020
    2265
    2180
    48-¢42
    2325
    2230
    48-¢48
    2200
    2220
    2475
    2390
    52-¢42
    2550
    2440
    52-¢56
    2400
    2420
    2685
    2600
    56-¢42
    2760
    2650
    56-¢56


    网站地图